+ VLOŽIT NABÍDKU
Omlouváme se, ale tato nabídka už není aktivní.
Podívejte se na jiné nabídky z kategorie
Pronájem bytu Brno
Pronájem bytu Brno studentům 2+kk
SOUKROMÝ MAJITEL BYTU

Pronájem bytu Brno pro studenty v lokalitě Brno-střed

Cena pronájmu: 18 000 Kč/měsíc 18000

Uvedená cena je za celý byt pro 6 osob. Víte, jak se vyvarovat podvodným nabídkám?

Dostupné od: 22. 8. 2013
Nabízeno: 6 míst
Výše kauce: 15 000 Kč
Poslední aktualizace: 8. 8. 2013

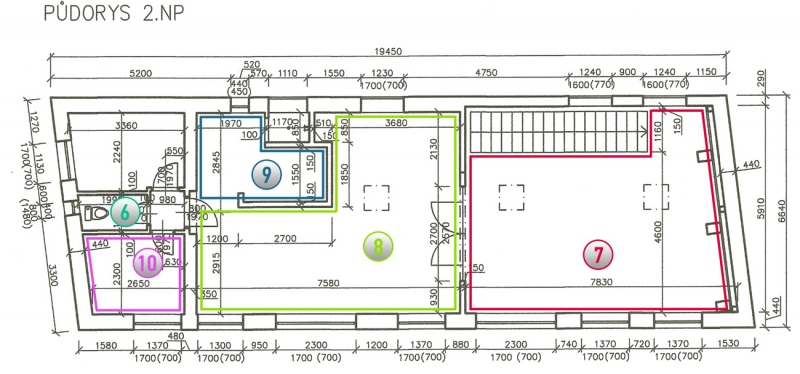
Nabízíme k pronájmu celé patro pro nezvyklé bydlení ve velkých otevřených místnostech s krásným vysokým podkrovním stropem. Prostor se nachází pár minut od většiny fakult, např. Phil.MUni, Law.MUni, VUTBr.ISS, Music/Phil.MUni, JAMU atd. atd. Popis místností dle obr. půdorysu: (6) WC, (10) malá místnost např. jako kuchyňka, (9) koupelna/kuchyňka, (8) velká místnost např. na spaní, (7) velká místnost např. obývák. Schodiště nad (7) se bude rušit a používat se bude schodište u WC. Možnost internetu a TV (UPC). Protože nejsou místnosti dále rozdělené, doporučujeme 4-5-6 lidí, kteří se znají. V přízemí firmy. V okolí obrovský výběr hospod. Jsme přímo pronajímatelé, ne realitka, žádné provize. Volejte kdykoliv, prohlídka možná denně dle dohody.

Koupelna

Pračka
Sprcha
Vana
WC

Kuchyně

Lednice
Jídelní stůl
Mikrovlnka
Sklenice
Nádobí
Sporák
Příbory

Ostatní

Vířivka (whirlpool)
Bazén
Terasa/balkon
Internet
Gauč
TV
Klimatizace
Garáž
Výtah
Povoleno zvíře
Postele
Skříň/komoda
Bezbariérový přístup

Dustupné služby v budově

Bar
Restaurace
Úschovna zavazadel
Recepce
Wellness
Sauna
Doktor
Kadeřnictví
Masáže
Prádelna
Vstupní hala

Omlouváme se, ale tato nabídka už není aktivní.
Podívejte se na jiné nabídky z kategorie
Pronájem bytu Brno